Stanovanje trisobno, Ljubljana, Vič Rudnik, Rožna dolina
Ljubljana , Ljubljana, Slovenija
1.053.000€
7 521 €/m²
Vrsta
Stanovanje
Velikost
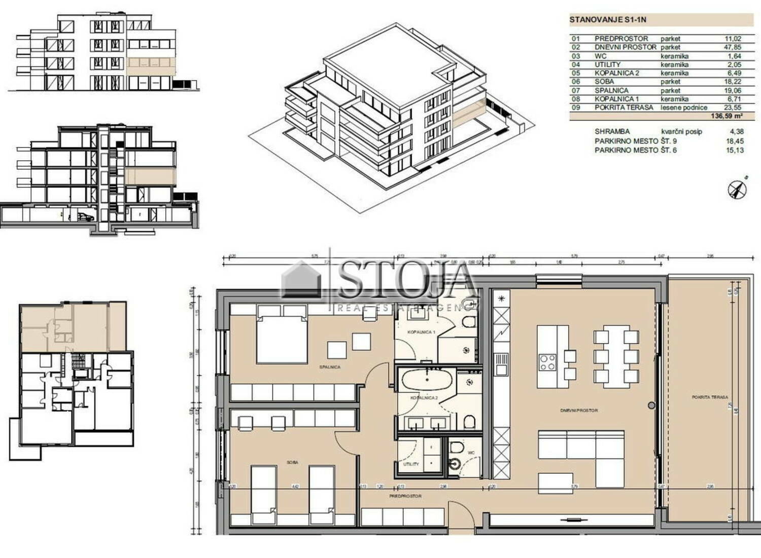
140 m²
Tip
5+
Podrobnosti
- Vrsta
- Stanovanje
- Tip
- 5+
- Cena
- 1.053.000€
- Velikost
- 140 m² (7 521 €/m²)
- Nadstropje
- 1/5
- Posodobljeno
- 17.11.2025
- ID
- 2374
Opis
ZAVIDANJA VREDNO STANOVANJE S POPOLNIM KOMFORTOM.Samo za tiste, ki si želijo privoščiti vrhunsko izdelano stanovanje locirano v neposredni bližini Tivoli parka in Centra mest, imamo samo še nekaj najboljših stanovanj na voljo. Želite živeti v bolj intimnem okolju, potem zgrbite priložnost. Samo 10 stanovanj je bilo narejenih in polovica je že prodanih.Stanovanje ima 112.7 m2 (neto) oziroma 140.97 m2 (bruto) povoršine, specifikacija površin je razvidna iz načrta. Težko je na kratko opisati vso tehnologijo, ki je vgrajena v ta vrhunski stanovanjski objekt. Mogoče lahko celo rečemo, da ima vse, kar danes tehnologija ponuja.Končni videz objekta bo dejansko tak kot ga lahko vidite na vizualizaciji, ter ga boste lahko prvič v živo videli oktobra 2024.Vseljivo bo Junija 2025Kot smo že prej omenili je objekt tehnološko dovršen in tu je nekaj naštete tehnologije: talno in stensko ogrevanje, stropno in stensko hlajenje, nič pihanja in vedno idealna temperatura, prezračevanje z vračanjem toplote, vedno idealna vlažnost filtriranega zraka, ter nizki stroški ogrevanja in hlajenja, sistem pametne hiše Gira (nadzor stanovanje iz vašega telefona, kjer koli že ste), parkirna mesta z napeljavo za električno polnilnico, kontrola dostopa na vhodu, varnost od ulice naprej, obešena prezračevana fasada, z 20cm izolacije, (vedno lepa fasada), alu 3 slojna panoramska okna za tišino in veliko svetlobe, zunanje senčenje na električen pogon, (screen in polkna) avtodvigalo za dostop do komfortne garaže, parket, oljen hrast, položen na ribjo kost 90 stopinj – prva klasa vrhunska kopalniška - design opremaKot pri opremi objekta z tehnološko dovršenimi rešitvami in izbranimi materiali, je investitor predvidel tudi razkošno velika parkirna mesta z veliko višino stropa garaže. Zato lahko tudi z terenskim vozilom, katero ima strešni kovček, parkirate v svoji garaži. Okolica vile bo namenjena urejeni zelenici z nek
Kontaktni podatki
- Kontaktna oseba
- Esad Čeman
- Mobilni telefon
- +386 41 699 372
Podobne nepremičnine
Stanovanje štirisobno, Ljubljana, Ljubljana center, Stara Ljubljana
- 1.080.000€ 176 m2
Stanovanje trisobno, Ljubljana, Vič Rudnik, Rožna dolina
- 1.091.320€ 136 m2
Ljubljana, Medvode
- 1.096.443€ 309 m2
Ljubljana, Stara Ljubljana, Mestni trg
- 1.100.000€ 204 m2
Ljubljana, Stara Ljubljana, Mestni trg
- 1.100.000€ 204 m2
Ljubljana, Stara Ljubljana, Mestni trg
- 1.100.000€ 204 m2
Stanovanje štirisobno, Ljubljana, Bežigrad
- 1.100.000€ 160 m2
Stanovanje štirisobno, Ljubljana, Ljubljana center, Center
- 1.100.000€ 206 m2
Stanovanje trisobno, Ljubljana, Vič Rudnik, Rožna dolina
- 980.000€ 153 m2
Ljubljana, Center
- 1.127.450€ 118 m2
Ljubljana, Stara Ljubljana
- 1.150.000€ 80 m2
Stanovanje petsobno, Ljubljana, Šiška
- 1.152.592€ 303 m2