Ljubljana, Godič
Godič , Ljubljana, Slovenija
195.000€
425 €/m²
Vrsta
Zemljišče
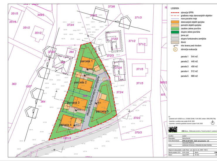
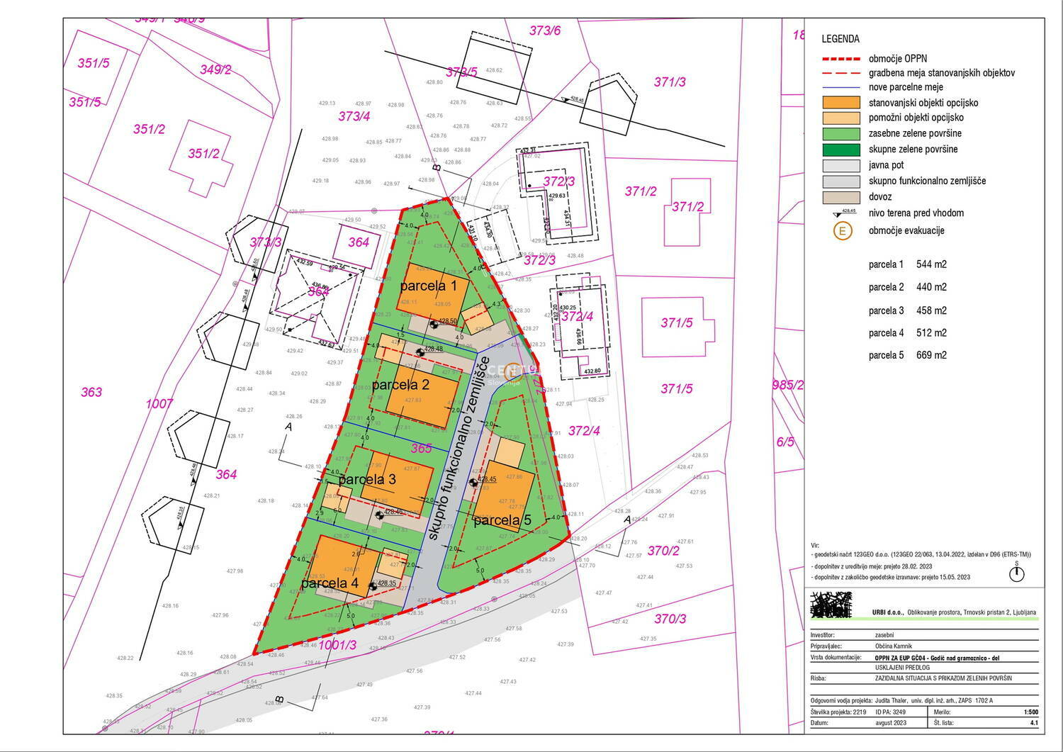
Velikost
458 m²
Podrobnosti
- Vrsta
- Zemljišče
- Cena
- 195.000€
- Velikost
- 458 m² (425 €/m²)
- Posodobljeno
- 28.11.2025
- ID
- 2793
Opis
Ekskluzivna priložnost za nakup komunalno opremljene gradbene parcele v Kamniku – Godič V mirnem in naravnem okolju Kamnika, natančneje v naselju Godič, prodajamo gradbeno parcelo, ki omogoča gradnjo eno- ali dvostanovanjske hiše. Parcela se nahaja v novem naselju v katerem bo zraslo petih hiš, kar pomeni urejeno bivalno okolje, obenem pa je obdana z naravo, kar omogoča prijetno in kakovostno bivanje. Lokacija nudi odprt pogled na okoliške gore in neokrnjeno naravo, hkrati pa omogoča hiter dostop do mesta Kamnik in vse potrebne infrastrukture. Velikost parcele : 458 m2 TIPOLOGIJA ZAZIDAVE: FZ max. 0,4 FI max. 0,8 Gradijo se lahko objekti etažnosti max. (K) + P + M ali (K) + P + 1 Streha mora biti simetrična dvokapnica z naklonom od 35 do 45 stopinj. Predvidena ureditev dovozne poti in pripadajoče komunalne infrastrukture bo zaključena v maju 2025. To vključuje novo vodovodno omrežje, fekalno in padavinsko kanalizacijo ter priključke na električno in telekomunikacijsko omrežje (Telekom in T-2). Cesta bo urejena s širino 5 metrov in dolžino 55 metrov, na njenem koncu pa bo predvideno obračališče za vozila. V naselju bo vzpostavljena cona umirjenega prometa z omejitvijo hitrosti na 10 km/h. Med trenutnim lastnikom in občino je sklenjena pogodoba o opremljanju za vsako posamezno parcelo. Kar pomeni, da je komunalni prispevek že vključen v ceno parcele za gradnjo stanovanjske hiše do bruto tlorisne površine 270 m2. To pomeni pomemben finančni prihranek za kupca. Prodajni pogoj prodajalca je, da mu kupec povrne oz. prevzame plačilo stroška 2 % + DDV za stroške nepremičninega posredovanja agencije. Opozorilo: V oglasu so poleg slik dejanskega stanja objavljene tudi vizualizacije naselja za lažjo predstavo. Parcele se prodajajo brez gradbenega dovoljenja, to ureja vsak kupec sam. Za več informacij in ogled nas kontaktirajte.
Kontaktni podatki
- Kontaktna oseba
- Robert Klopčič
- Mobilni telefon
- 040 698... Pokaži številko
Podobne nepremičnine
Ljubljana, Godič,
- 195.000€ 440 m2
Ljubljana, Trzin
- 217.000€ 604 m2
Ljubljana, Trzin
- 230.000€ 409 m2
Ljubljana, Trzin
- 230.000€ 450 m2
Ljubljana, Podpeč
- 159.000€ 932 m2
Ljubljana, Brezovica pri Ljubljani
- 149.000€ 932 m2
Ljubljana, Ivančna Gorica
- 148.000€ 737 m2
Ljubljana, Trzin
- 245.000€ 681 m2
Ljubljana, Brezovica pri Ljubljani
- 139.000€ 932 m2
Ljubljana, Butajnova
- 134.000€ 20 m2
Ljubljana, Zaboršt pri Dolu
- 69.000€ 4 m2
Ljubljana, Zaboršt pri Dolu
- 59.000€ 4 m2