Ormož
, Ormož, Slovenija
270.000€
675 €/m²
Vrsta
Hiša
Velikost
400 m²
Podrobnosti
- Vrsta
- Hiša
- Cena
- 270.000€
- Velikost
- 400 m² (675 €/m²)
- Posodobljeno
- 14.11.2025
- ID
- 1905
Opis
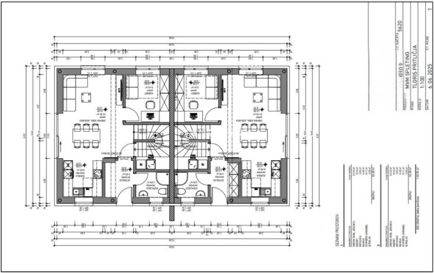
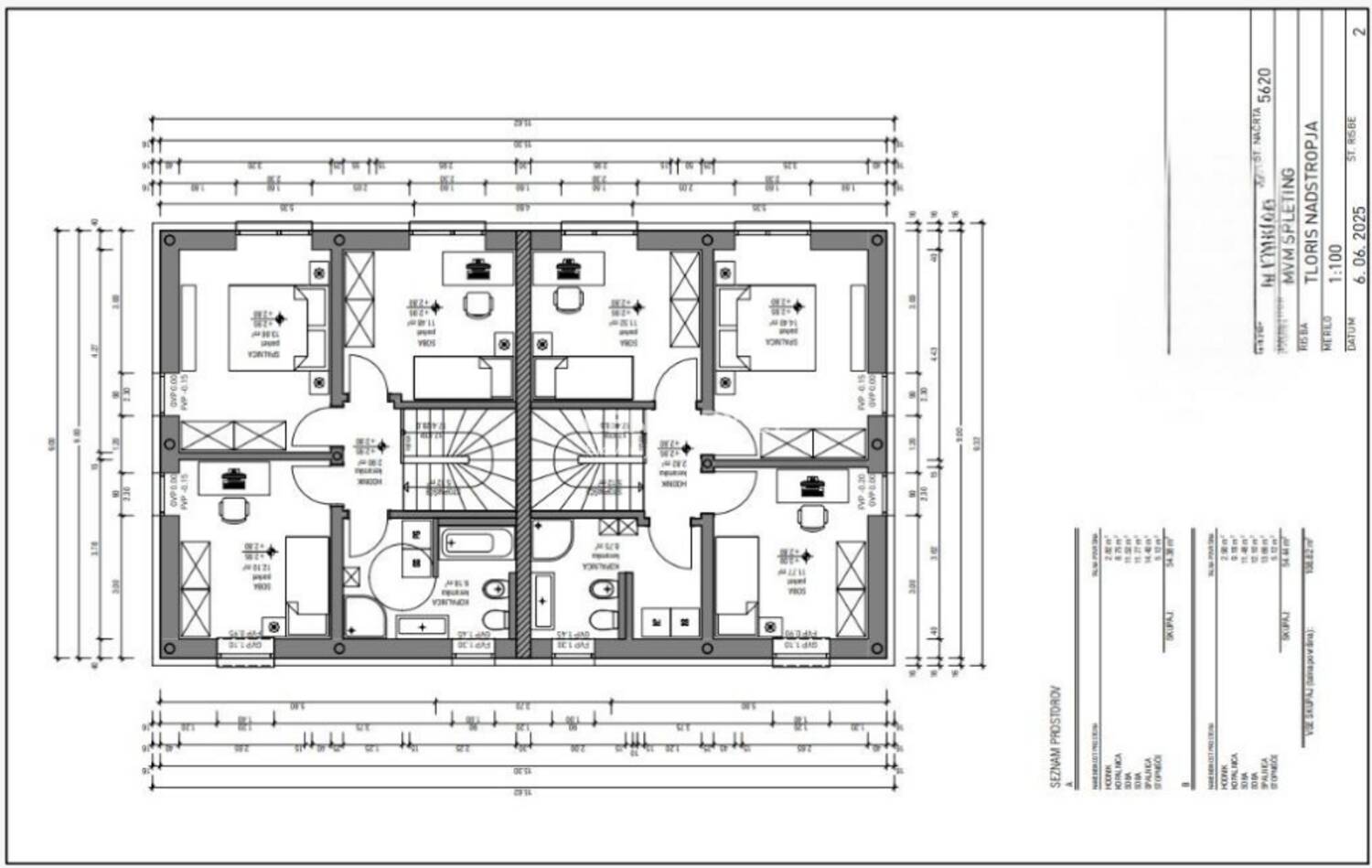
V mestu Ormož - predel Dolga lesa posredujemo pri prodaji novonastajajoče enote dvojčka, v izmeri ca. 140, 00 m2 bruto bivalnega prostora.. Enota bo izvedena na kljulč (V. gradbena faza), Predviden zaključek je december 2026. Enota bo stala na zemljišču velikosti ca. 400,00 m2 Okolica je mirna, sončna ter leži v mestu Ormož v predelu Dolga lesa. Enota bo imela ca. 140,00 m2 bruto površine (od tega je ca, 110,00 m2 notranje neto površine ) in bo obsegala prritličje in zgornji del. Pritličje: hodnik, kabinet, dnevna soba s kuhinjo in jedilnico, kopalnica, shramba, vetrolov + zunanja terasa. ( 55,39 M2). Zgornji del: stopnišče, hodnik, kopalnica , spalnica, soba 1, soba 2. ( 54, 44 m2 ) Pred hišo bo manjša zelenica in prostor za parkiranje vsaj dveh vozil. Ob strani in za objektom pa se bo nahajala zelenica in zadaj za stavbo še terasa.. Dostop je po asfaltirani cesti. Novozgrajeni objekt bo izveden kot stanovanjska enota. Temelj posamezne enote predstavlja AB temeljna plošča, nosilni zidovi iz opečnih zidakov in AB vezi. Medetažma plošča se izvede kot AB plošča. Prav tako se iz betona izvede strešna konstrukcija in stopnice. Vsaka enota ima pravokotno obliko tlorisa z izzidkom, ki predstavlja vhod v enoto. Streha je ravna naklona 2 stopinji, kritina je strešna folija in prodec. Fasada bo izvedena z gladkim ometom in opleskana v svetlih tonih. Zunanje mere na stiku z zemljiščem: 7,91 m x 9,32 m + 2,0 mx 3,5 m (izzidek). Objekt bo zgrajen ter pokrit , ter bo vseboval (zunanja vrata ,okna ter police, zunanja fasada , vse inštalacije za elektriko, vodo, optiko in ogrevanje, ometi, estrihi, talno gretje, sanitarna oprema, toplotna črpalka Panasonic ali Mitsubishi ...). V tej fazi bo urejena tudi okolica okoli enote omenjenega dvojčka. Izvedena bo tudi keramika z opremo v kopalnici in stranišču, parketi in notranja vrata. Enota dvojčka se bo nahajala le 700 m od centra mesta Ormož. V bl
Kontaktni podatki
- Kontaktna oseba
- Andrej Repolusk
- Mobilni telefon
- 041 252... Pokaži številko
Podobne nepremičnine
Ormož
- 270.000€ 400 m2
Čudovita vinogradniška domačija v Sloveniji – na voljo takoj
- 250.000€ 384 m2
Ormož, Ivanjkovci
- 229.000€ 400 m2
Ormož, Ivanjkovci
- 229.000€ 400 m2
Ormož, Žerovinci
- 229.000€ 750 m2
Ormož, Žerovinci, Žerovinci
- 220.000€ 750 m2
Stanovanjska hiša
- 75.000€ 147 m2