Pesnica, Pernica
Pernica , Pesnica, Slovenija
69.500€
97 €/m²
Vrsta
Zemljišče
Velikost
716 m²
Podrobnosti
- Vrsta
- Zemljišče
- Cena
- 69.500€
- Velikost
- 716 m² (97 €/m²)
- Posodobljeno
- 17.10.2025
- ID
- 1742
Opis
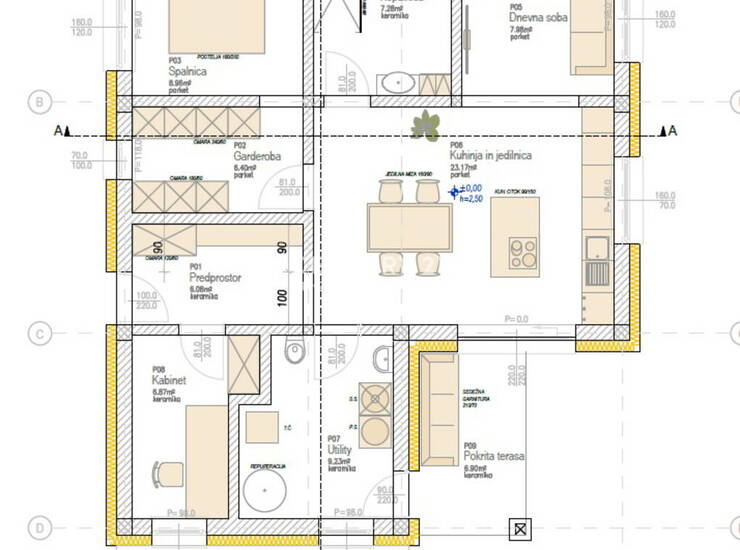
NA PRODAJ: Gradbena parcela z gradbenim dovoljenjem za atrijsko hišo v Pernici, v izmeri 716 m2 V urejenem in mirnem naselju Pernica prodamo ravno gradbeno parcelo v skupni izmeri 716 m2, ki se nahaja ob dostopni cesti. Parcela je pripravljena na takojšnjo gradnjo – plačan komunalni prispevek in izdano pravnomočno gradbeno dovoljenje, na parceli je že postavljena elektro omarica, ostala infrastruktura (voda, kanalizacija, telekomunikacije) se nahaja ob parceli. Tehnični podatki: Dostop z javne ceste Elektro priključek na parceli Voda, kanalizacija in telekom ob parceli Pravnomočno gradbeno dovoljenje Plačan komunalni prispevek Predvidena gradnja: Na parceli je predvidena gradnja pritlične enodružinske hiše, oblikovane v črki L, z dvokapno streho (naklon posamezne strešine 38°). Sodoben in funkcionalen tloris zajema: Kuhinjo z jedilnico povezano z dnevno sobo Spalnico z garderobo Kabinet (delovni prostor) Utility Kopalnico Predprostor Pokrito teraso na notranji strani objekta Nadstrešek (carport) za dve osebni vozili na cestni strani Tloris z razporeditvijo in kvadraturami posameznih prostorov je priložen. Zakaj izbrati to parcelo? Odlična priložnost za hitro gradnjo brez dodatnih postopkov in stroškov Udobno bivanje v sodobno zasnovanem pritličnem objektu
Kontaktni podatki
- Kontaktna oseba
- Marina Sreš
- Mobilni telefon
- 031 470... Pokaži številko
Podobne nepremičnine
Pesnica, Pernica, Pernica 23 [kopija]
- 40.000€ 1 m2
Pesnica, Pernica, Pernica 23
- 40.000€ 1 m2
Pesnica, Pernica, Pernica 23
- 40.000€ 21 m2
Pesnica, Vukovje
- 29.900€ 10 m2
Pesnica, Vukovski dol
- 22.900€ 13391 m2
Pesnica, Počenik
- 13.900€ 10 m2
Pesnica, Pernica, Pernica 11
- 5.000€ 1 m2