Hiša samostojna, Severna Primorska, Šempeter - Vrtojba, Šempeter pri Gorici

Šempeter pri Gorici , Šempeter pri Gorici, Slovenija

319.000€

1 511 €/m²

Vrsta

Hiša

Velikost

211 m²

Podrobnosti

Vrsta
Hiša
Cena
319.000€
Velikost
211 m² (1 511 €/m²)
Posodobljeno
17.11.2025
ID
2106

Opis


Samostojna hiša, 211,7 m2, parcela: 468 m2, ŠEMPETER PRI GORICI
V Šempetru pri Novi Gorici, natančneje na Ulici Andreja Gabršča prodamo hišo zgrajeno leta 1968, ki je v fazi celostne prenove. Hiša ima funkcionalen tloris ter pet poletaž. Zadnja mansardna etaža, ima v večini stojno višino kjer se nahaja dodatna soba.
Zemljišče je veliko 468 m2 in je dobro osončeno. Hiša je primerna zlasti za družine z otroci. V neposredni bližini se nahaja vsa potrebna infrastruktura.
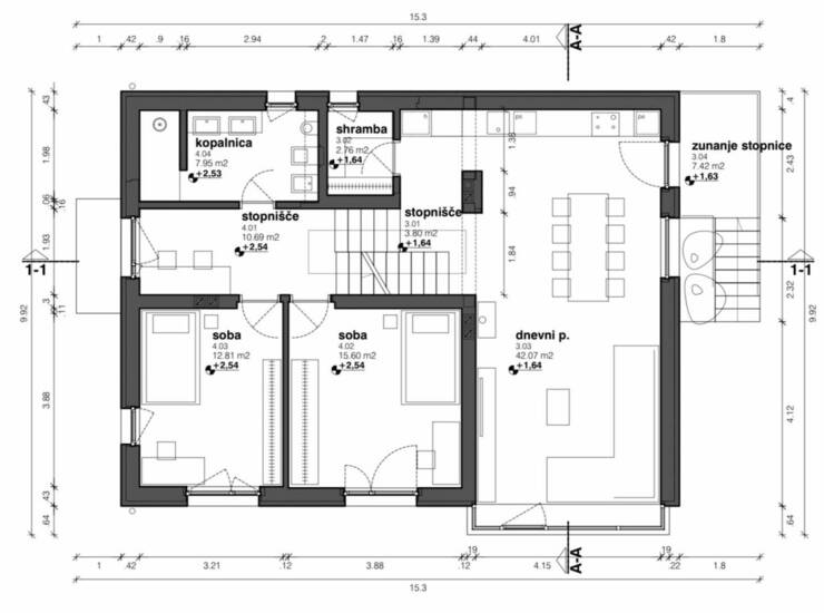
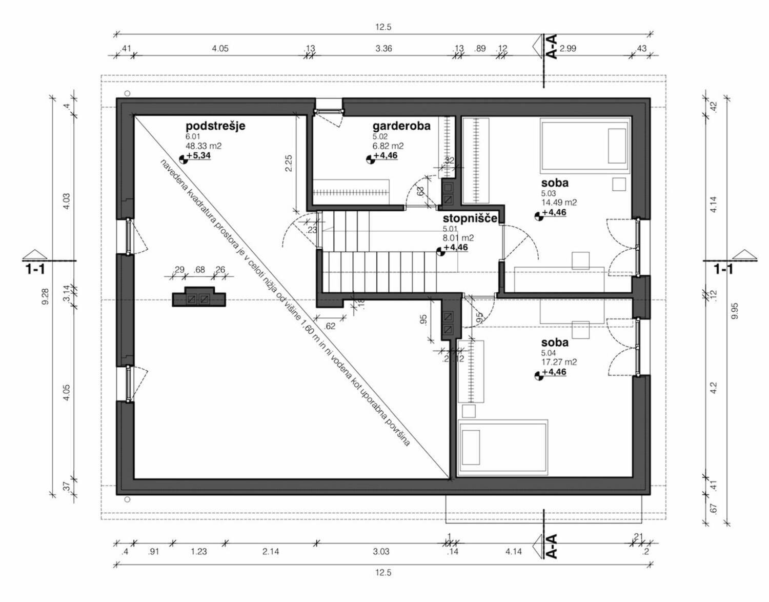
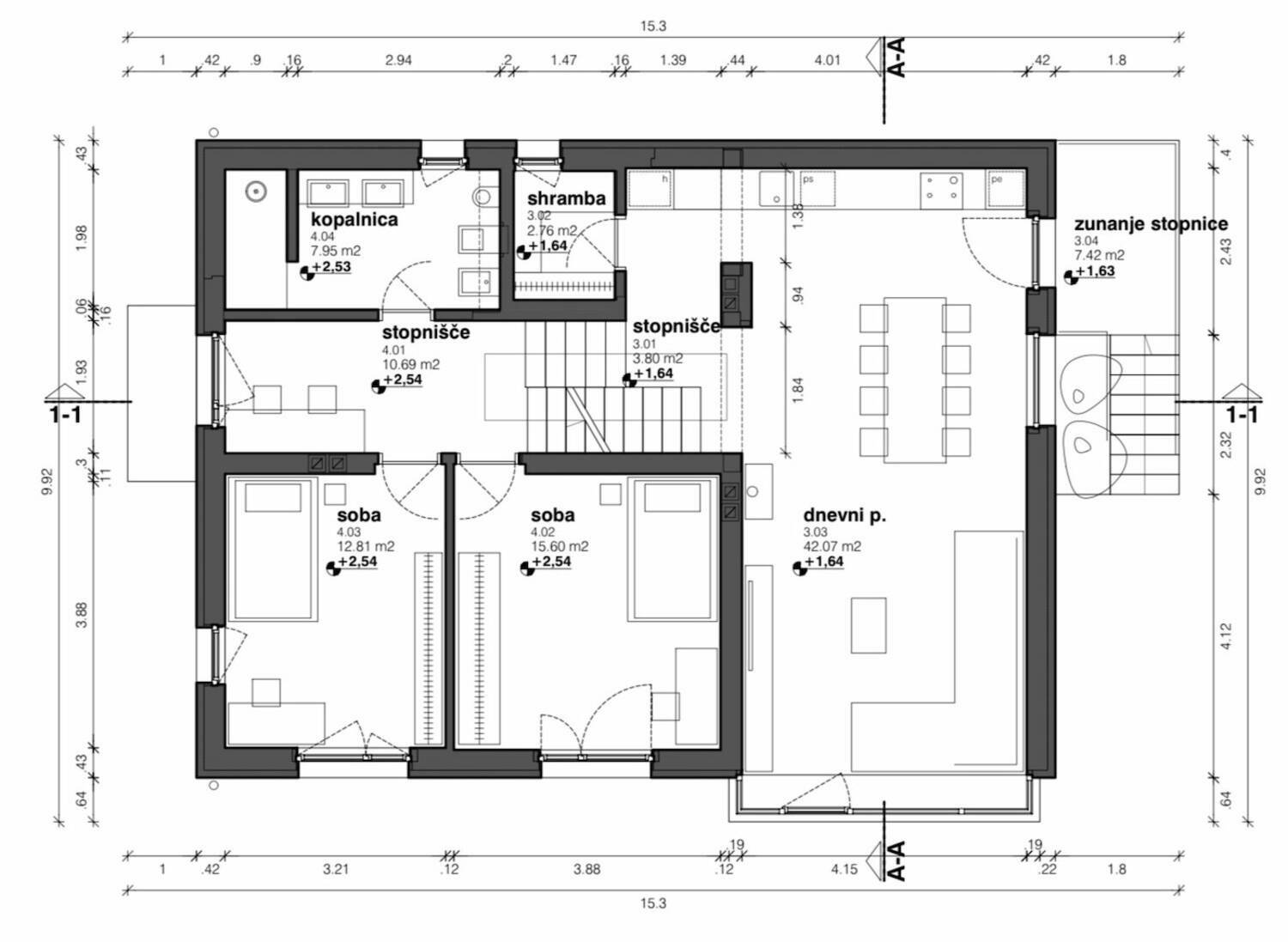
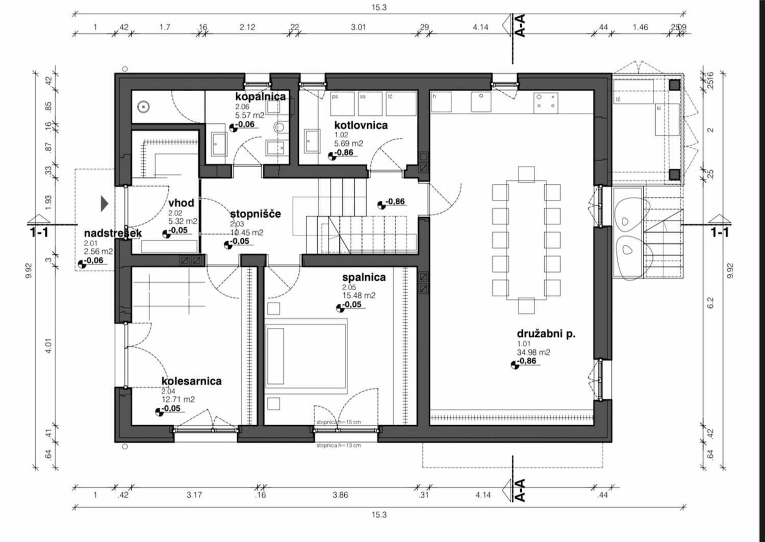
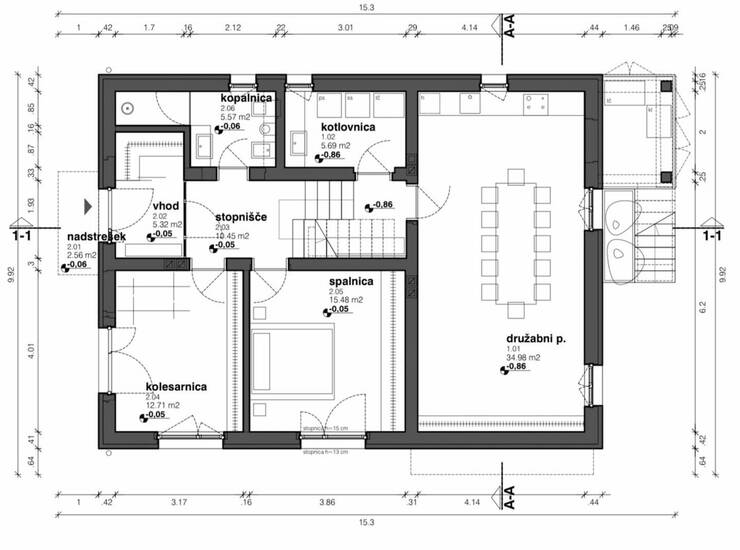
Površina, razporeditev in lega
Hiša je sestavljena iz več poletaž in obsega skupaj 211,7 m2 bruto površine.
V pritličju se nahajajo: vhodni del, stopnišče, kotlovnica, kopalnica, družabni prostor, spalnica in kolesarnica z vhodom iz zunanje strani.
V nadstropju se nahajajo: stopnišče s pisarniškim delom, kopalnica, shramba, dnevno bivalni del s kuhinjo in jedilnico, dve sobi.
V mansardi pa se nahajata dve sobi, garderoba in večji prostor, ki ima nižjo stojno višino.
Zemljišče v velikosti 468 m2 je pravokotne oblike. Pred hišo so predvidena tri parkirna mesta.
Prenove in opremljenost
Hiša je v fazi prenove, ki se prenavlja po novem arhitekturnem projektu. Streha je že menjana, na novo izolirana. Vso stavbno pohištvo je novo, izdelana je talna hidroizolacija. V zaključni fazi pa poteka pridobivanje gradbenega dovoljenja za prenovo.
Zelo premišljeni tlorisi omogočajo, da si uredite dom po svojih željah in opremite z materiali po lastni izbiri.
Dodatne karakteristike
Razpoložljivi priključki: vodovod, kanalizacija, elektrika in optika.
Ogrevanje: toplotna črpalka in možnost kamina
Parkiranje: pred hišo. 
Opis lokacije in razpoložljiva infrastruktura
V neposredni bližini hiše se nahaja vsa infrastruktura.
Ostalo
ZK urejeno
Ponudbeni pogoj prodajalca: kupec je dolžan povrniti del stroška prodaje v višini 2% + ddv, obračunano od pogodbene vrednosti nepremičnine.
Vabljeni na ogled!

Kontaktni podatki

Kontaktna oseba
Eva Golc
Mobilni telefon
041 599... Pokaži številko

Kontaktiraj oglaševalca