Slovenj Gradec, Šmartno pri Slovenj Gradcu
Šmartno pri Slovenj Gradcu , Slovenj Gradec, Slovenija
294.000€
403 €/m²
Vrsta
Hiša
Velikost
729 m²
Podrobnosti
- Vrsta
- Hiša
- Cena
- 294.000€
- Velikost
- 729 m² (403 €/m²)
- Posodobljeno
- 03.11.2025
- ID
- 1839
Opis
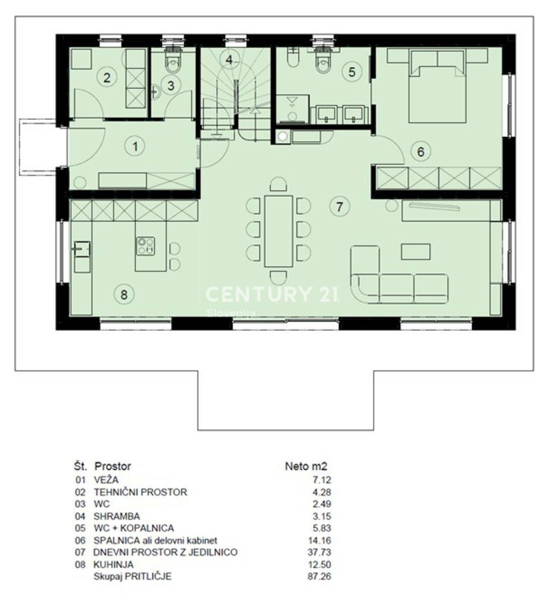
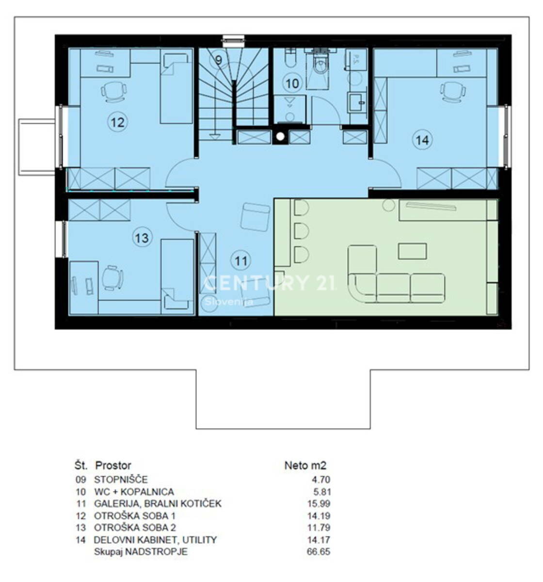
V prijetnem okolju Šmartna pri Slovenj Gradcu posredujemo pri prodaji dveh samostojnih stanovanjskih hiš v tretji podaljšani gradbeni fazi, ki čakata, da jih oblikujete po svojih željah in potrebah. Hiši, ki sta skoraj nič energijski, predstavljata prijetno ravnovesje med bližino trgovine, okulista, pošte za vsakodnevne opravke, vrtca (50 m), osnovne šole (150 m), bližino centra Slovenj Gradca (2 km) in umeščenostjo v naravo. Dodatna prednost lokacije je tudi bodoči priključek na hitro cesto, ki bo oddaljen le 800 metrov. Ponujata prijeten dom za družine, ki jim je mar, v kakšnem okolju živijo, zato so investitorji pri gradnji uporabili naravne materiale – masivno leseno konstrukcijo iz križno lepljenih elementov. Med prednostmi gradnje velja izpostaviti leseno stavbno pohištvo, izolacijo iz kamene volne ter silikatni zaključni sloj, ki omogoča, da hiša diha in ustvarja zdravo bivalno okolje. Tudi pri zunanjosti so upoštevali skladnost in harmonično uporabo barv ter teksture lesa, kar ustvarja vizualno prijetne hiše, v katerih je veselje živeti. Sodobno načrtovani hiši s 154 m2 uporabne površine ponujata vse, kar potrebujete za udobno ustvarjanje spominov v vašem novem domu. Vhodna vrata se odpirajo v prostorno garderobo, sledi WC za goste, tehnični prostor, stopnišče in dnevni prostor, ki organsko prepleta kuhinjo, jedilnico in dnevno sobo. Spodaj se nahaja tudi spalnica s kopalnico. V hišo se preliva ogromno dnevne svetlobe v vsakem delu dneva, električne žaluzije pa omogočajo zatemnitev in senčenje v poletnih dneh. V zgornjem nadstropju sta dve otroški sobi, kopalnica in kabinet oziroma dodatna otroška soba. Galerija vam omogoča občutek povezanosti hiše in večjo možnost, da vsi člani družine pravočasno zaznajo večerjo na mizi. Hišo objema 729 m2 veliko zemljišče, na katerem že zeleni trava in ponuja veliko možnosti za individualno ureditev vrta, otroškega igrišča ter prostora za vsakod
Kontaktni podatki
- Kontaktna oseba
- Mojca Čas
- Mobilni telefon
- 031 406... Pokaži številko
Podobne nepremičnine
Slovenj Gradec, Šmartno pri Slovenj Gradcu
- 289.000€ 610 m2
Slovenj Gradec
- 320.000€ 390 m2
Slovenj Gradec, Legen
- 320.000€ 692 m2
Slovenj Gradec, Troblje, Troblje
- 250.000€ 449 m2
Slovenj Gradec, Mislinjska Dobrava
- 249.000€ 1 m2
Slovenj Gradec, Mislinjska Dobrava
- 248.000€ 1 m2
Slovenj Gradec, Gmajna
- 239.000€ 680 m2
Slovenj Gradec, Šmartno pri Slovenj Gradcu
- 368.000€ 107 m2
Slovenj Gradec, Šmartno pri Slovenj Gradcu
- 376.000€ 114 m2
Slovenj Gradec, Šmartno pri Slovenj Gradcu
- 185.000€ 538 m2
Slovenj Gradec, Vrhe, Vrhe 44D
- 179.000€ 3 m2
Slovenj Gradec, Legen
- 135.000€ 87 m2