Hiša dvojček, Osrednjeslovenska, Vrhnika
Vrhnika , Vrhnika, Slovenija
395.000€
2 724 €/m²
Vrsta
Hiša
Velikost
145 m²
Podrobnosti
- Vrsta
- Hiša
- Cena
- 395.000€
- Velikost
- 145 m² (2 724 €/m²)
- Posodobljeno
- 17.11.2025
- ID
- 1998
Opis
Vrhnika, Sinja Gorica, 20 min. do Ljubljane, n o v a stanovanjska enota C v 2-stanovanjski hiši CD 145,47 m2 izdelana na ključ*, parcela 203 m2, 2 x zunanje parkirno mesto, prodamo. Cena enote C: 395.000,00 eur vključuje DDV.
*Do dokončanja manjka samo še: parket, keramika, sanitarna keramika - wc kotlički idr opreme v kopalnici, notranja vrata, sistem centralne rekuperacije zraka (inštalacije so izdelane) - cca 25-30.000,00 eur
Le 20 minut od Ljubljane je za prijetno družinsko življenje v objemu zelenja narave v dvostanovanjskem objektov za nakup na voljo nova stanovanjska enota v urejenem naselju stanovanjskih hiš.
Podrobnejši opis
V dvostanovanjskem objektu se nahajata dve enoti, ki v naravi predstavljata hišo dvojček.
Objekt je arhitekturno zasnovana tako, da se v pritličnem delu nahajajo bivalni prostori, v nadstropju pa spalni.
Etaže: P+ N + M
Gradnja: klasična opečna gradnja, AB
Tri etažna stanovanjska enota s 145,47 m2 s 109,57 m2 bivalne površine ima zelo veliko število velikih steklenih površin, ki prostorom zagotavljajo obilo naravne svetlobe in s tem ugodne pogoje bivanje čez cel dan.
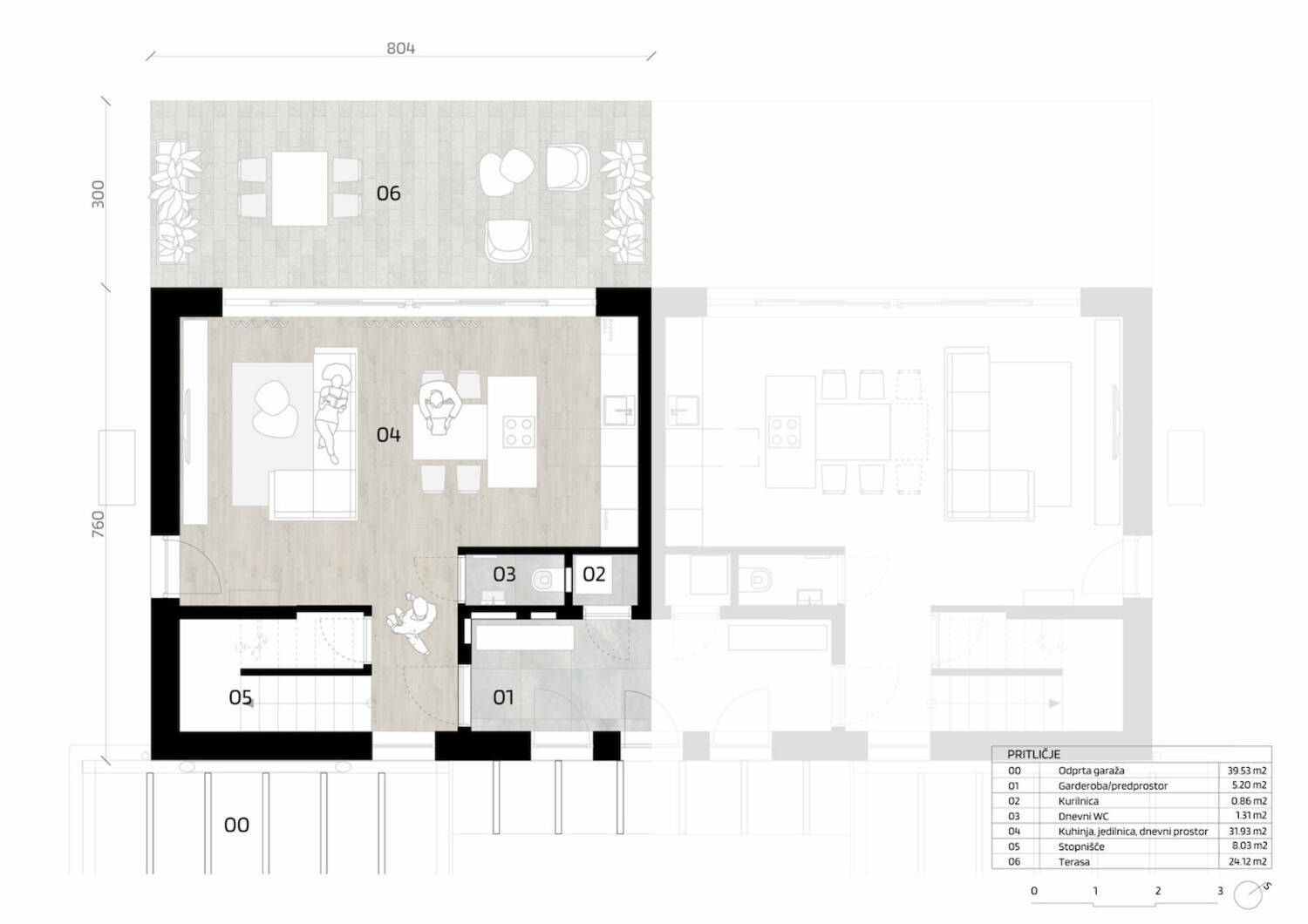
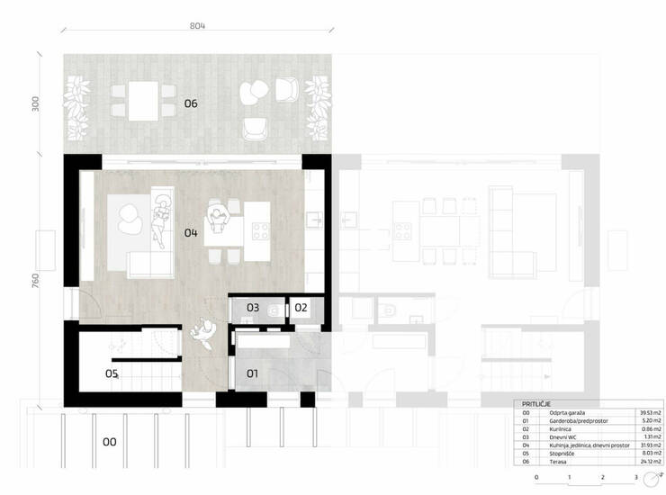
Ob glavnem vhodu je svetel s keramiko tlakovan prostor (5,2 m2) za garderobo in vhod v tehnični prostor tlakovan s keramiko, v katerem je nameščena toplotna črpalka, naprej desno pa vhod v stanovanjsko enoto C - hiša dvojček.
Ob vhoda v stanovanjsko enoto je wc, naprej pa se na desno odpre velik svetel odprt bivalni del s kuhinjo, jedilnico in dnevno sobo iz katere je izhod na vrtno tlakovano teraso (24 m2) in zeleni vrtni del.
Pod betonskimi stopnicami nasproti vhoda, ki vodijo v nadstropje, se nahaja priročna shramba.
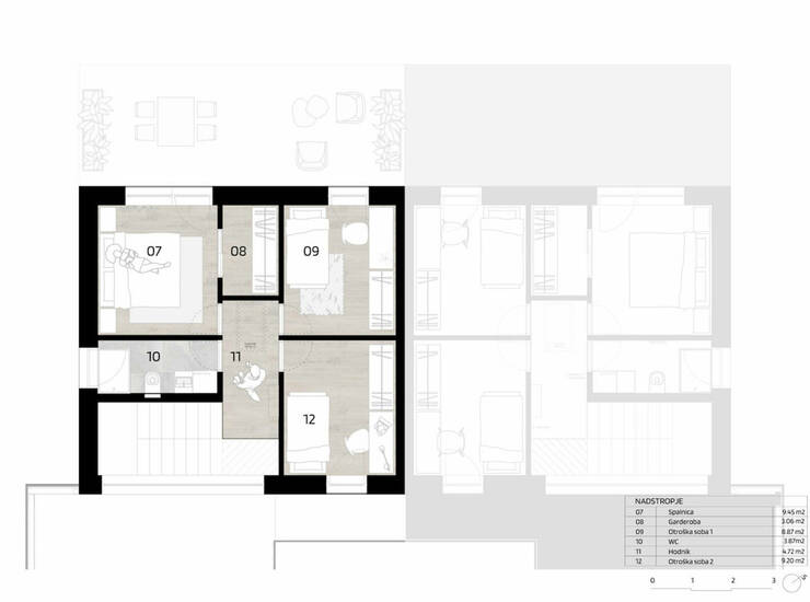
Stopnišče ima zelo velike steklene površine in se v nadstropju zaključijo z galerijo.
Iz hodnika v nastropju se vstopa v kopalnico, spalnico z garderobnim prostorom, vzhodno otroško sobo in zahodno otroško sobo.
Iz hodnika se lahko uredi tudi dostop v mansardo po dvižnih stopnicah.
Mansarda,
Kontaktni podatki
- Kontaktna oseba
- Danica Stošić - PARTNER
- Mobilni telefon
- + 386 (0)40 817... Pokaži številko
Podobne nepremičnine
Hiša dvojček, Osrednjeslovenska, Vrhnika, Sinja Gorica
- 395.000€ 145 m2
Hiša dvojček, Osrednjeslovenska, Vrhnika, Sinja Gorica
- 395.000€ 145 m2
Hiša dvojček, Osrednjeslovenska, Vrhnika, Sinja Gorica
- 375.000€ 145 m2
Hiša dvojček, Osrednjeslovenska, Vrhnika, Sinja Gorica
- 349.000€ 120 m2
Hiša samostojna, Osrednjeslovenska, Vrhnika, Zaplana
- 340.000€ 130 m2
Hiša samostojna, Osrednjeslovenska, Vrhnika
- 480.000€ 358 m2
Hiša samostojna, Osrednjeslovenska, Vrhnika, Drenov Grič
- 550.000€ 95 m2
Hiša dvostanovanjska, Osrednjeslovenska, Vrhnika, Sinja Gorica
- 580.000€ 168 m2
Vrhnika, Vrhnika
- 745.000€ 695 m2