Hiša A3 Petišovci – novogradnja v izgradnji (163 m², 643 m² parcela)

Lendava , Lendava, Slovenija

56.481.600€

344 400 €/m²

Vrsta

Hiša

Velikost

164 m²

Tip

5+

Ogrevanje

Centralno

Podrobnosti

Vrsta
Hiša
Tip
5+
Cena
56.481.600€
Velikost
164 m² (344 400 €/m²)
Velikost zemljišča
643
Ogrevanje
Centralno
Parkirišče
Da
Posodobljeno
26.04.2026
ID
3245

Opis

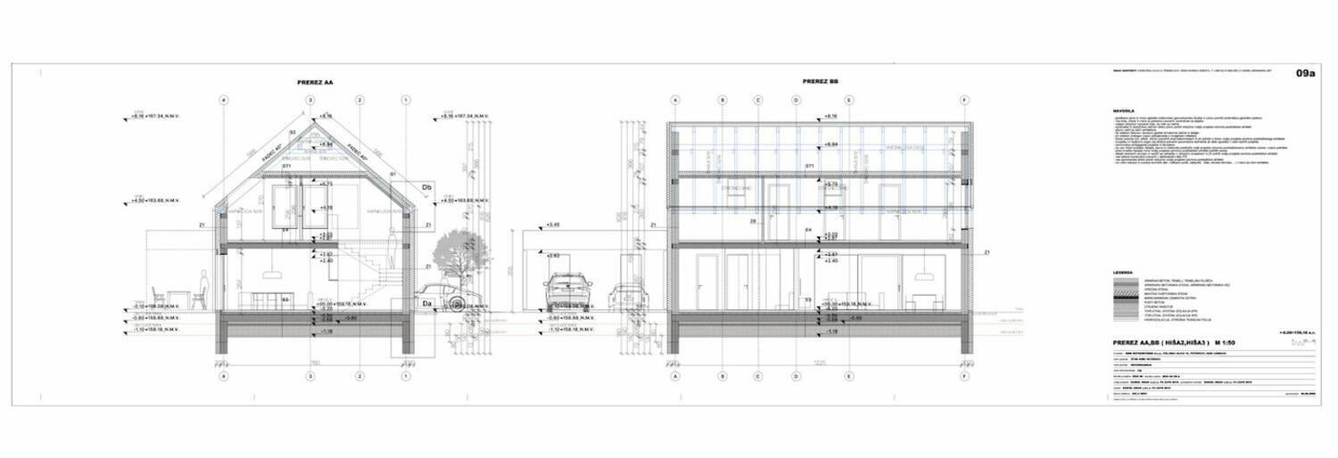
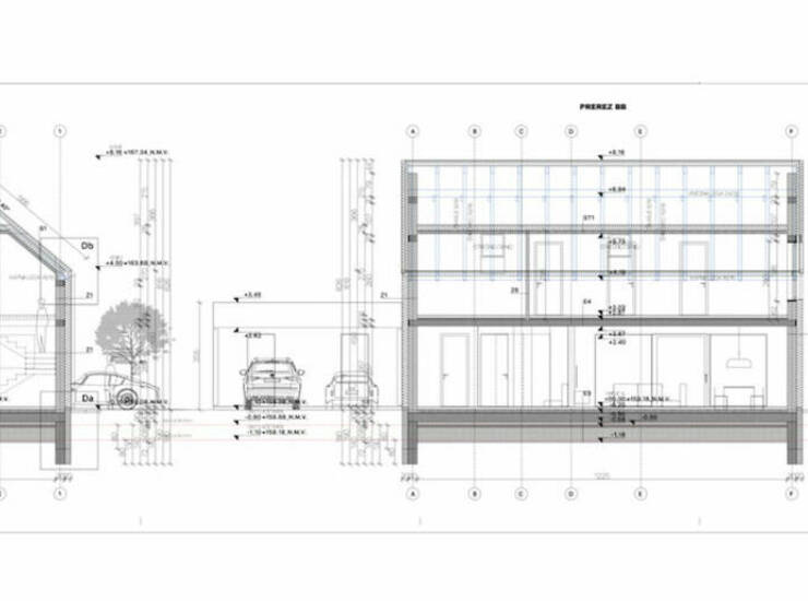
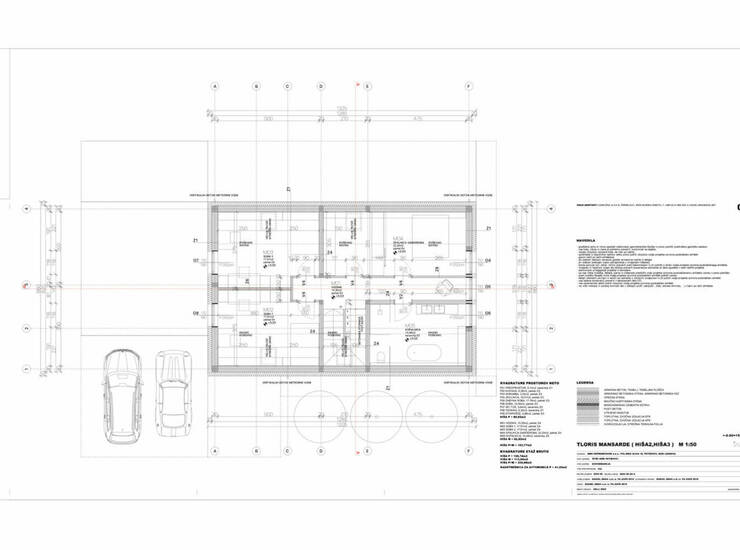
Hiša A3 v Petišovcih pri Lendavi je sodobna novogradnja v izgradnji s 163,77 m² površine in 643 m² zemljišča. Odlikujejo jo energetska učinkovitost, kakovostni materiali in odlična lokacija blizu treh držav.

Enota A3 predstavlja vrhunec našega naselja in služi kot vzorčna hiša, ki postavlja standarde kakovosti za vse prihodnje objekte. Hiša je v visokem stadiju izgradnje, kar potencialnim kupcem omogoča jasen vpogled v vrhunsko arhitekturno zasnovo, kakovost uporabljenih materialov in prostornost bivalnih delov. Predvideni rok za dokončanje in prevzem te ekskluzivne enote je poletje 2026. Vabljeni na voden ogled, kjer se lahko v živo prepričate o udobju, ki ga nudi vaš prihodnji dom v objemu narave. Za več o projektu vas prosimo da sledite spletni povezavi, s komercialnim opis in ostalo dokumentacijo o ponudbi: 

Agencija ne zaračunava provizije! Za oglede in informacije se obrnite na navedeno nepremičninsko agencijo!

YouTube povezava: https://youtu.be/6pv7iEHPsJA

Kontaktni podatki

Nepremičnine Sv
Reg. posrednika br.
00879
Kontaktna oseba
Nepremičnine SV
Mobilni telefon
041 760... Pokaži številko
Adresa
Prešernova ulica 2
center
Ljutomer , Slovenija

Kontaktiraj oglaševalca

Podobne nepremičnine