Hiša A4 Petišovci – največja parcela 758 m², moderna hiša
Lendava , Lendava, Slovenija
59.171.200€
360 800 €/m²
Vrsta
Hiša
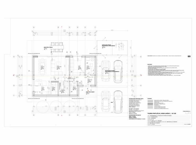
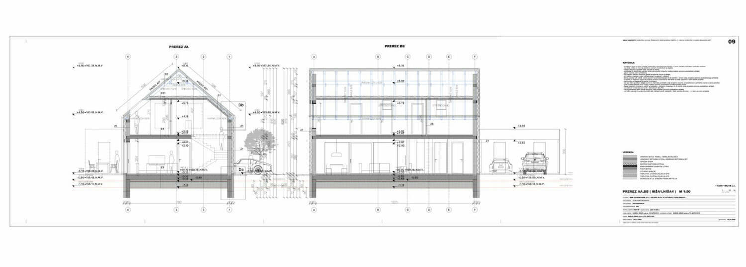
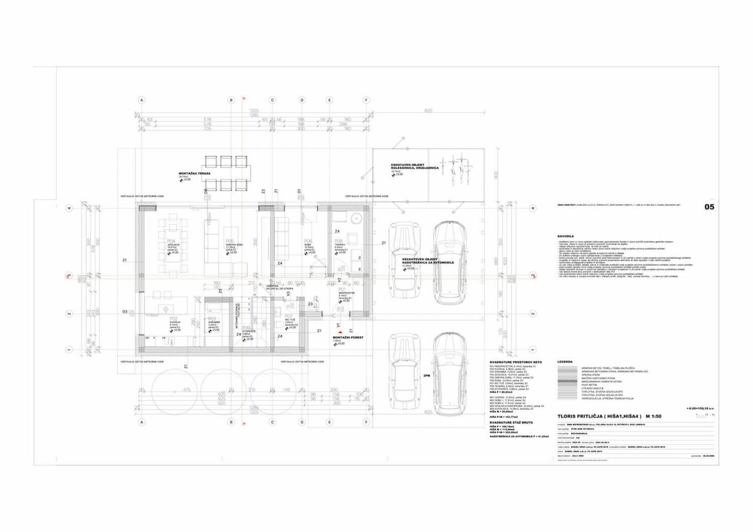
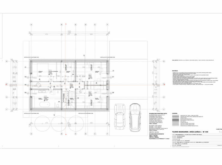
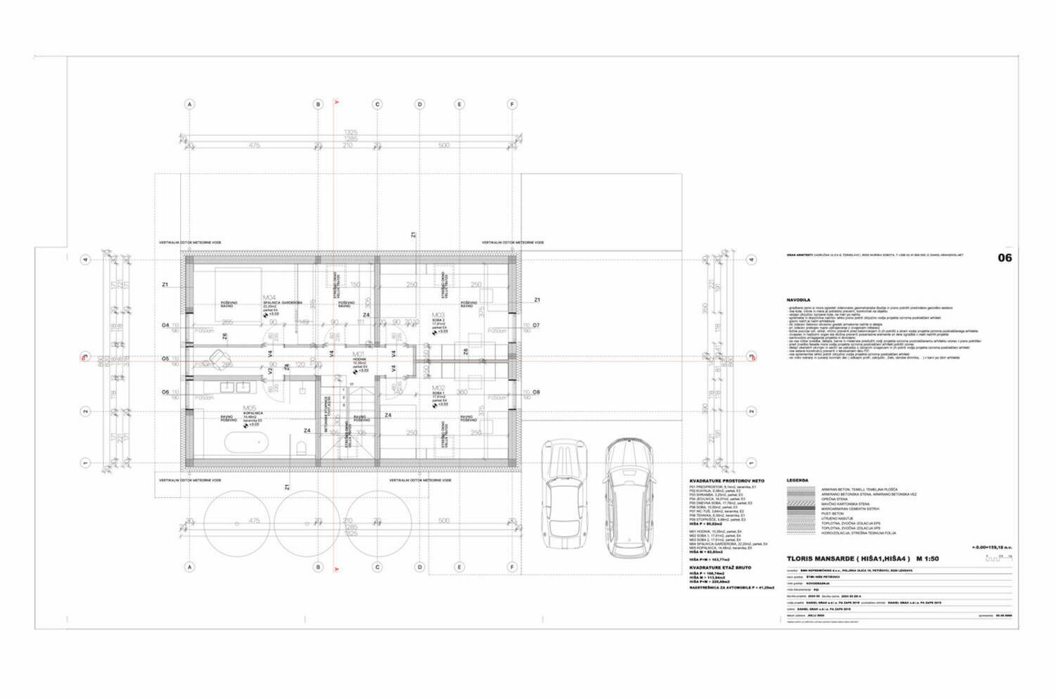
Velikost
164 m²
Tip
5+
Ogrevanje
Centralno
Podrobnosti
- Vrsta
- Hiša
- Tip
- 5+
- Cena
- 59.171.200€
- Velikost
- 164 m² (360 800 €/m²)
- Velikost zemljišča
- 758
- Ogrevanje
- Centralno
- Parkirišče
- Da
- Posodobljeno
- 26.04.2026
- ID
- 3243
Opis
Enote A4 ponuja edinstveno priložnost za tiste, ki želijo svoj novi dom prilagoditi lastnim željam. Gradnja te enote se še ni pričela, kar pomeni, da se lahko z investitorjem sproti dogovorimo o dinamiki izgradnje in specifičnih prilagoditvah. Cena za te enote ni fiksna, temveč se oblikuje na podlagi individualnega dogovora ter trenutnih razmer na trgu materialov in storitev. Zagotovite si svojo nepremičnino v tem modernem naselju in sodelujte pri ustvarjanju svojega sanjskega doma že od samega začetka. Možnost vodenega ogleda vzorčne enote A3, ki je v izgradnji in bo predvidoma dokončana na podlagi komercialnega opisa sredi poletja 2026.
Za več o projektu vas prosimo da sledite spletni povezavi, s komercialnim opis in ostalo dokumentacijo o ponudbi:
Agencija ne zaračunava provizije!
Za oglede in informacije se obrnite na navedeno nepremičninsko agencijo!
YouTube povezava: https://youtu.be/6pv7iEHPsJA
Kontaktni podatki
- Agencija
-
Nepremičnine SV
- Reg. posrednika br.
- 00879
- Kontaktna oseba
- Nepremičnine SV
- Mobilni telefon
- 041 760... Pokaži številko
- Adresa
- Prešernova ulica 2
- center
- Ljutomer , Slovenija
Podobne nepremičnine
Hiša A1 Petišovci – moderna novogradnja pri Lendavi (164 m², parcela 614 m²)
- 59.171.200€ 164 m2
Hiša A3 Petišovci – novogradnja v izgradnji (163 m², 643 m² parcela)
- 56.481.600€ 164 m2