Hiša dvojček, Ljubljana, Vič Rudnik, Dolgi most
Ljubljana , Ljubljana, Slovenija
470.000€
1 626 €/m²
Vrsta
Hiša
Velikost
289 m²
Podrobnosti
- Vrsta
- Hiša
- Cena
- 470.000€
- Velikost
- 289 m² (1 626 €/m²)
- Posodobljeno
- 17.11.2025
- ID
- 2034
Opis
Dobrova pri Ljubljani Dolgi most - Podsmreka (LPP 6B), AC izvoz BREZOVICA 1km; nova hiša dvojček z ravno streho 289,4 m2 v III.pgf, N+P+K, parcela 375,6 m2 prodamo. Cena - enota A: 470.000,00 eur
Možen dogovor za izvedbo do IV.pgf ali "na ključ".
Ljubiteljem tesnega sobivanja z zelenjem narave in vsakodnevnih pohodov po gozdnih poteh nedaleč od AC priključka je za dokončanje po lastnih potrebah, za nakup na voljo sodobna hiša dvojček z ravno streho v III. podaljšanji gradbeni fazi.
Možnost takojšnje rezervacije – idealna priložnost za vse, ki blizu Ljubljane iščete nekaj več kot stanovanje ob gozdu.
Hiša se prodaja v III. podaljšani gradbeni fazi, kar omogoča popolno prilagoditev notranjih prostorov vašemu življenjskemu slogu – bodisi za družino, delo od doma, ali udobno večgeneracijsko bivanje.
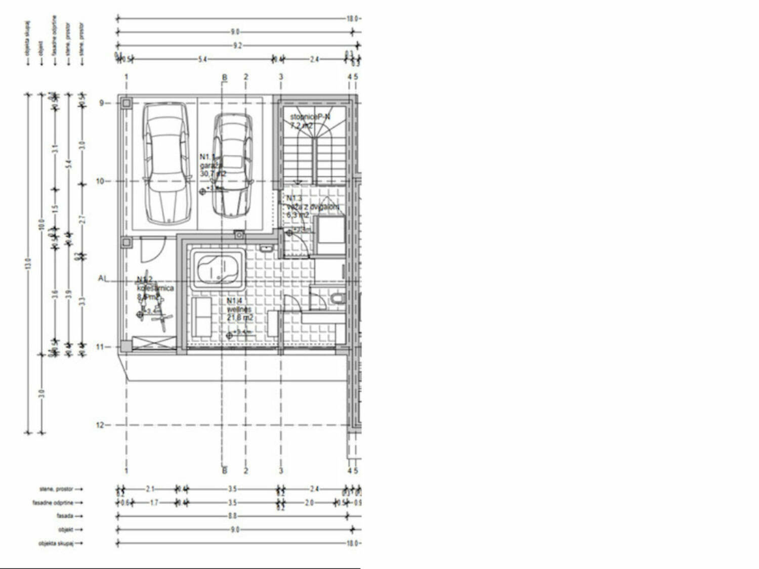
Bruto tlorisna površina:
OBJEKT A 289,4 m2
Velikost gradbene parcele stavba A: 375,6 m2
Streha: ravna
Število etaž: N+P+K
Dostop
Dostop do javne kategorizirane ceste na zahodni strani je preko interne dostopne ceste, ki je neposredno mejna s predmetno parcelo.
Lega: dnevno bivalni del - jug; dovoz - sever
Predvideni prostori in velikosti posamezne stanovanjske enote:
K
shramba 3,2 m2
wc 2,9 m2
predsoba z dvigalom 11,7 m2
kopalnica 3,4 m2
bivalni del 32,8 m2
soba 1 12,4 m2
nadkrita terasa 8,8 m2
P
kopalnica 7,6 m2
utiliy 4,7 m2
garderoba 4 7m2
stopnice 7,2 m2
hodnik z dvigalom 10,2 m2
so
Kontaktni podatki
- Kontaktna oseba
- Danica Stošić - PARTNER
- Mobilni telefon
- + 386 (0)40 817... Pokaži številko
Podobne nepremičnine
Ljubljana, Jezero
- 469.000€ 198 m2
Ljubljana, Rudnik
- 475.000€ 498 m2
Ljubljana, Trzin
- 479.000€ 427 m2
Ljubljana, Domžale
- 479.000€ 223 m2
Hiša samostojna, Ljubljana, Vič Rudnik, Vič
- 459.000€ 203 m2
Ljubljana, Domžale
- 455.000€ 222 m2
Ljubljana, Domžale
- 455.000€ 223 m2
Ljubljana, Domžale
- 455.000€ 223 m2
Hiša vrstna, Ljubljana, Šiška, Brod
- 485.000€ 185 m2
Hiša vrstna, Ljubljana, Šiška, Vižmarje
- 490.000€ 204 m2
Hiša trojček, Ljubljana, Vič Rudnik, Rakovnik
- 490.000€ 98 m2
Ljubljana, Radomlje
- 449.000€ 405 m2