Hiša vrstna, Ljubljana, Vič Rudnik, Vič
Ljubljana , Ljubljana, Slovenija
549.000€
3 660 €/m²
Vrsta
Hiša
Velikost
150 m²
Podrobnosti
- Vrsta
- Hiša
- Cena
- 549.000€
- Velikost
- 150 m² (3 660 €/m²)
- Posodobljeno
- 17.11.2025
- ID
- 2180
Opis
NOVOGRADNJA – MODERNA HIŠA NA ODLIČNI LOKACIJI
Na prodaj je čudovita vrstna hiša, ki se nahaja na frekventni lokaciji, idealni za vse, ki cenijo dobro povezanost in hiter dostop do vse infrastrukture.
Kljub dinamični okolici, hiša ponuja svojo zeleno oazo miru – vrt za hišo, kjer lahko uživate v popolni zasebnosti in sprostitvi.
Gre za kakovostno novogradnjo, ki združuje sodoben dizajn, energetsko učinkovitost in udobno bivanje.
Glavne značilnosti:
✔ Oznaka: E-16
✔ Faza gradnje: III podaljšana g.f.
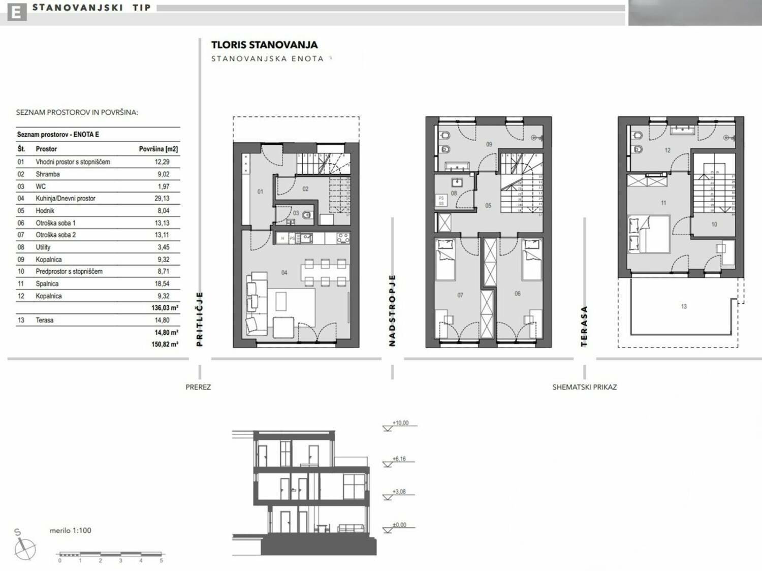
✔ Kvadratura: 136,03 m² bivalna površina in 14,80 m² strešna terasa
✔ Parcela: 170,97 m²
✔ Razporeditev:
Pritličje: vetrolov, shramba, ločen wc, odprt dnevno bivalni prostor s kuhinjo in jedilnico z izhodom v atrij
1.nadstropje: 2 otroški sobi, utility, kopalnica
2.nadstropje: spalnica z lastno kopalnico, kabinet, prostorna terasa
✔ Ogrevanje: predvideno je talno gretje na mestni plin
✔ Prezračevanje: predvideno je centralno prezračevanje
✔ Priključki: vsi priključki so že v objektu
✔ Parkirišče: 2PM pred objektom za zapornico
✔ Okolica: urejen asfaltiran in tlakovan dostop do objekta, izvedena je ograja atrija
Hiša je na prodaj v III podaljšani gradbeni fazi. Izvedba armiranobetonska (stene, plošče, stopnišča).
Predelne stene se izvedejo kot suhomontažne, lahko se odločite tudi za zidano izvedbo.
Projekt za izvedbo je izdelan kot je prikazano v tlorisih, lahko ga prilagodite in spremenite po svojih željah in potrebah.
Izvedena je fasada s toplotno izolacijo debljine 20cm, vgrajena so visokokakovostna troslojna les-alu okna z zunanjimi screen senčili na električni pogon.
Kakovostni ovoj stavbe in optimalna orientiranost prostorov (vsi bivalni prostori so obrnjeni proti JV, tehnični prostori in sanitarije proti SZ) zagotavljajo energetsko učinkovitost, prijetno osvetljenost prostorov ter udobno bivanje v hiši.
Lokacija:
Hiša se nahaja na Viču v Ljubljani na zelo atraktivn
Kontaktni podatki
- Kontaktna oseba
- Dragana A.Hren - PARTNER
- Mobilni telefon
- + 3865136... Pokaži številko
Podobne nepremičnine
Ljubljana, Brezovica pri Ljubljani, Tržaška cesta
- 550.000€ 738 m2
Ljubljana, Logatec, Zelena pot
- 550.000€ 392 m2
Hiša samostojna, Ljubljana, Vič Rudnik, Vič
- 550.000€ 145 m2
Ljubljana, Brezovica pri Ljubljani, Tržaška cesta
- 550.000€ 738 m2
Hiša dvojček, Ljubljana, Vič Rudnik, Dolgi most
- 540.000€ 289 m2
Hiša dvojček, Ljubljana, Vič Rudnik, Rudnik
- 540.000€ 133 m2
Ljubljana, Vič
- 539.000€ 182 m2
Ljubljana, Trnovo
- 568.000€ 314 m2
Ljubljana, Trnovo
- 568.000€ 314 m2
Ljubljana, Trzin
- 569.000€ 299 m2
Ljubljana, Trzin, Jemčeva cesta
- 569.000€ 299 m2
Ljubljana, Vrhovci
- 570.000€ 306 m2