Stanovanje trisobno, Ljubljana, Šiška, Spodnja Šiška
Ljubljana , Ljubljana, Slovenija
369.000€
4 855 €/m²
Vrsta
Stanovanje
Velikost
76 m²
Tip
5+
Podrobnosti
- Vrsta
- Stanovanje
- Tip
- 5+
- Cena
- 369.000€
- Velikost
- 76 m² (4 855 €/m²)
- Nadstropje
- 6/8
- Posodobljeno
- 17.11.2025
- ID
- 2305
Opis
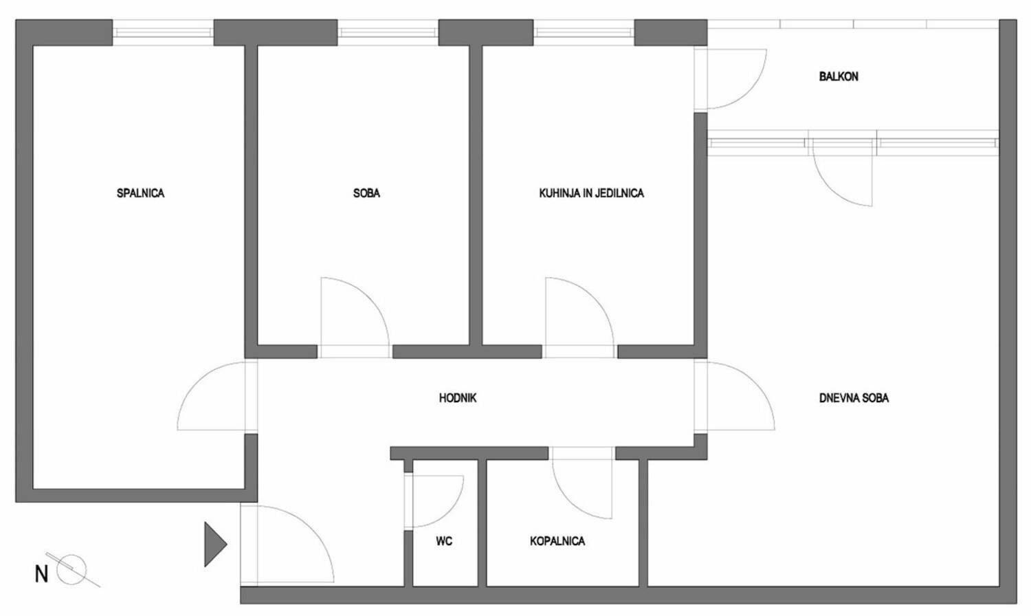
LJ–ŠIŠKA, 3-SOBNO STANOVANJE, 76,40 m²
Posredujemo pri prodaji funkcionalnega 3-sobnega stanovanja, ki se nahaja v urejenem bloku v Šiški, na Celovški cesti.
Hitro vseljivo!
Osnovne informacije
Neto bivalna površina: 71,00 m²
Balkon 3,00 m²
Shramba v kleti
Nadstropje: 6/8
Zgrajeno: l. 1964
Dvigalo: DA
Razporeditev
Stanovanje odlikuje funkcionalna razporeditev prostorov:
hodnik
kuhinja z jedilnico
dnevna soba
spalnica
soba
kopalnica z banjo
zastekljen balkon
Oprema in prenova
Stanovanje je bilo l.2020 prebeljeno in delno obnovljeno:
Objekt je redno vzdrževan, fasada in streha sta bili obnovljeni.
Ogrevanje - centralno, radiatorji (toplarna).
Ogrevanje sanitarne vode - lastna plinska peč.
Parkiranje
Parkiranje je omogočeno na parkirišču pred objektom ali v neposredni okolici.
Lokacija
Odlična lega v neposredni bližini vse potrebne infrastrukture: trgovine, šole, vrtec, LPP postaje in hitrega dostopa do avtoceste.
Lokacija nudi prijetno bivanje z vsem na dosegu roke.
Pravno stanje
Etažna lastnina je urejena, stanovanje je vpisano v zemljiško knjigo in brez bremen.
Dodatno
Pogoj prodajalca je, da kupec prevzame del stroškov posredovanja v višini 2% pogodbene vrednosti.
Za več informacij ali ogled nas kontaktirajte:
05136... Pokaži številko
dragana@mreza.com
Kontaktni podatki
- Kontaktna oseba
- Dragana A.Hren - PARTNER
- Mobilni telefon
- + 3865136... Pokaži številko
Podobne nepremičnine
MEŠČANSKO STANOVANJE BLIZU ROŽNIKA
- 368.000€ 90 m2
Stanovanje štirisobno, Ljubljana, Šiška
- 368.000€ 90 m2
Stanovanje trisobno, Ljubljana, Bežigrad, Črnuče
- 370.000€ 85 m2
Stanovanje trisobno, Ljubljana, Bežigrad, Stožice
- 370.000€ 81 m2
Stanovanje štiriinvečsobno, Ljubljana, Bežigrad
- 370.000€ 100 m2
Stanovanje trisobno, Ljubljana, Moste Polje, Fužine
- 364.000€ 82 m2
Stanovanje trisobno, Ljubljana, Moste Polje, Zalog
- 375.000€ 83 m2
Ljubljana, Brdo
- 375.000€ 90 m2
Ljubljana, Šentvid
- 379.000€ 158 m2
Stanovanje trisobno, Ljubljana, Ljubljana center, Center
- 380.000€ 64 m2
Ljubljana, Nove Jarše, Ulica Hermana Potočnika
- 380.000€ 78 m2
Ljubljana, Bežigrad, Topniška ulica
- 355.000€ 92 m2