Hiša samostojna, Ljubljana, Vič Rudnik, Rožna dolina
Ljubljana , Ljubljana, Slovenija
1.500.000€
1 307 €/m²
Vrsta
Hiša
Velikost
1147 m²
Podrobnosti
- Vrsta
- Hiša
- Cena
- 1.500.000€
- Velikost
- 1147 m² (1 307 €/m²)
- Posodobljeno
- 17.11.2025
- ID
- 2182
Opis
Ljubljana - Rožna dolina / Stanovanjsko - poslovni objekt / Prodaja se solastniški delež (1/2) stavbe in pripadajočega zemljišča
Na odlični lokaciji v Rožni dolini prodamo stanovanjsko - poslovni objekt v osnovi zgrajen leta 1980. Objekt je investicijsko vsekakor zanimiv za potencialnega investitorja.
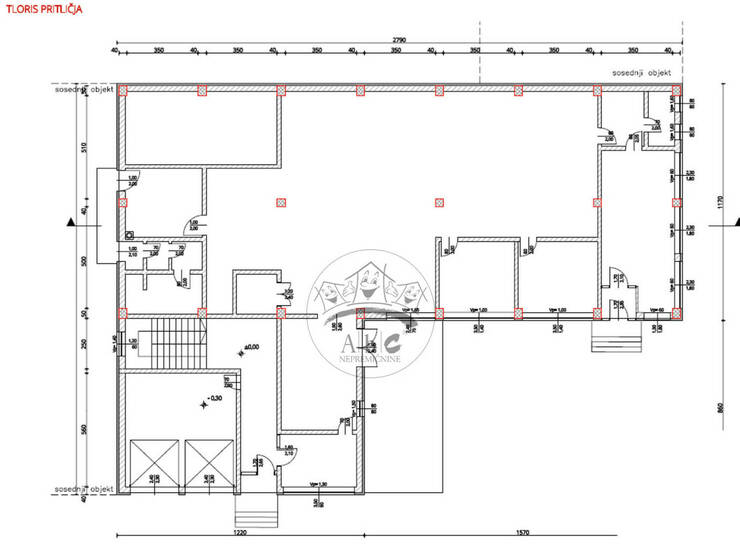
V pritličju objekta se je nahajala tiskarska delavnica s servisnimi prostori (kurilnica, shramba, sprejemnica, garaža, ipd.).
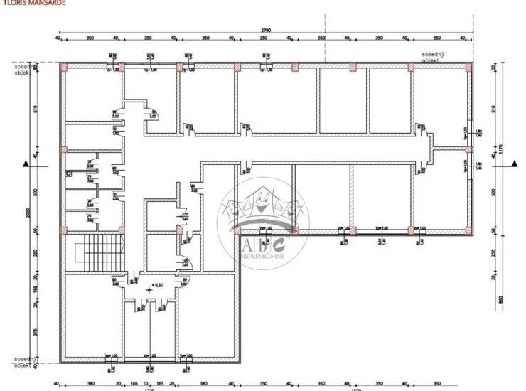
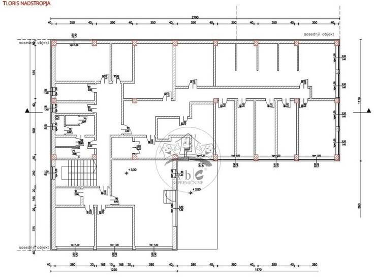
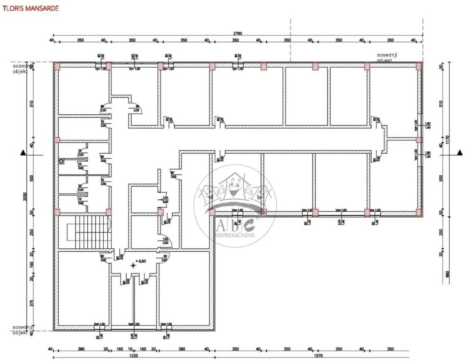
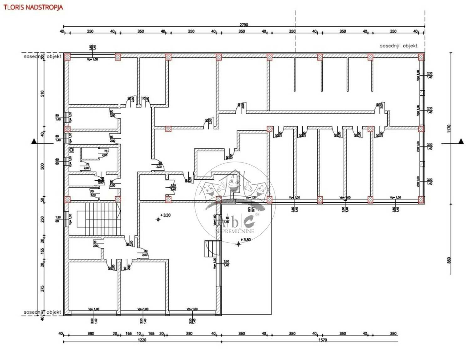
V nadstropju objekta pa je bilo včasih 5 različno velikih stanovanj, ki so bila leta 2004 spremenjena v hostel.
Objekt že nekaj let ni v uporabi. Notranjost je v slabšem stanju in vsekakor potreben prenove.
Velikost
Površina celotnega objekta (po GURS-u) meri 1.147 m2, pripadajoče zemljišče pa je veliko 625 m2.
Površine po delih stavbe (vpisanih na GURS-u; stanje v naravi je seveda drugačno zaradi pretekle preureditve v hostel):
Del 1: Stanovanje / 233,4 m2
Del 2: Stanovanje / 200,4 m2
Del 3: Stanovanje / 161,4 m2
Del 4: Poslovni del stavbe / 54,1 m2
Del 5: Industrijska raba / 274,4 m2
Del 6: Stanovanje / 112,4 m2
Del 7: Stanovanje / 110,9 m2
Trenutno stanje v naravi je razvidno iz priloženih tlorisov po etažah.
Ostale lastnosti nepremičnine
Objekt je zgrajen klasično (opečnata gradnja).
Streha, fasada, stavbno pohištvo .. vse je v prvotnem stanju.
Ogrevanje je urejeno centralno na raditorje na mestni plin.
Objekt je že nekaj časa prazen in ni v uporabi, zato je potreben kar konkretne prenove.
V letu 2004, ko se je v nadstropju in mansardi vzpostavil hostel se je skoraj v celoti spremenila razporeditev prostorov in prenovil določen del vodnih in elektro inštalacij.
Objekt je večjih dimenzij in sega do vseh 4ih meja parcele.
Pred objektom je nekaj zemljišča in prostor za parkirišče.
Zemljišče ima namensko rabo SSse (splošne eno in dvostanovanjske površine).
Med drugim so na tem območju dopustni tudi objekti kot npr.: stanovanjske stavbe za posebne namene, stavbe za izobra?
Kontaktni podatki
- Kontaktna oseba
- Alen Komić
- Mobilni telefon
- + 386 40 83 0... Pokaži številko
Podobne nepremičnine
Ljubljana, Rožna dolina
- 1.500.000€ 1 m2
Ljubljana, Rožna dolina
- 1.500.000€ 1 m2
Hiša samostojna, Ljubljana, Bežigrad
- 1.490.000€ 389 m2
Hiša samostojna, Ljubljana, Bežigrad
- 1.450.000€ 389 m2
Hiša samostojna, Ljubljana, Bežigrad
- 1.600.000€ 218 m2
Hiša samostojna, Ljubljana, Ljubljana center, Center
- 1.390.000€ 191 m2
Hiša samostojna, Ljubljana, Moste Polje, Moste
- 1.650.000€ 489 m2
Hiša vrstna, Ljubljana, Vič Rudnik, Rudnik
- 1.300.000€ 254 m2
Hiša dvojček, Ljubljana, Vič Rudnik, Rakovnik
- 1.250.000€ 220 m2
Dva dvostanovanjska objekta
- 1.200.000€ 749 m2
Ljubljana, Komenskega
- 1.200.000€ 359 m2
Hiša samostojna, Ljubljana, Moste Polje, Vodmat
- 1.199.000€ 400 m2